Specification
With Bargate, you get so much more. We feel a new home should have an extensive list of quality specification features – both big and small- which are included, as standard, to make a customer’s home special…because we believe that’s the way a new home should be. Special.

Development plan
This is your guide to the site plan, helping you visualise your home and its surroundings with ease.

Homes at Herons Quarter
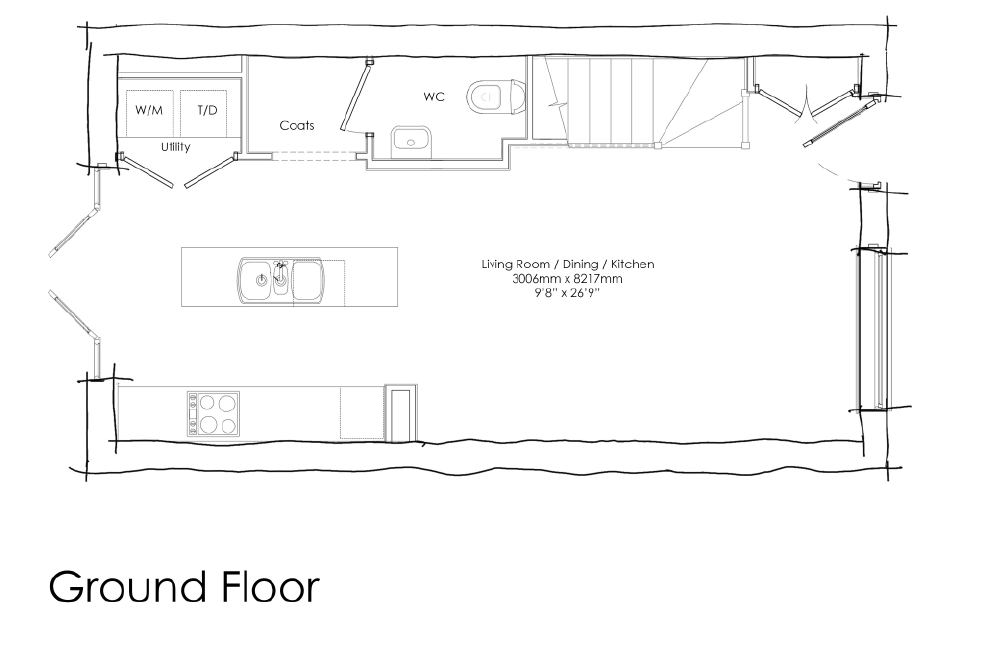
Floor plans
| Room | Dimensions |
|---|---|
| Kitchen, diner & living room | 8,210mm x 3,000mm – 26’9” x 9”8″ |
| Bedroom 1 | 3,450mm x 2,970mm – 11’3″ x 9’7″ |
| Bedroom 2 | 4,270mm x 2,560mm -14’ x 8’4” |

Wonderfully located
Why not consider…
Contact us
The sales team is available 7 days a week.














